Zum Inhalt springen
Uwe Bier Immobilien

Modernisiert, gepflegt und mit Liebe erhalten – freistehendes Einfamilienhaus in Monheim-Baumberg

725.000 € Objektnr.: monheim-baumberg-einfamilienhaus-162qm-1978-modernisiert 🛏 5 Zimmer 🛁 2 Bad 📐 162 m² 🏡 464 m² Grdst. 🏗 1978 ⚡ Energie: C (82 kWh/m²·a)
Modernisiert, gepflegt und mit Liebe erhalten – freistehendes Einfamilienhaus in Monheim-Baumberg

Beschreibung

Gepflegtes, freistehendes Einfamilienhaus (Baujahr 1978) mit rund 162 m² Wohnfläche auf ca. 464 m² Grundstück in begehrter Wohnlage von Monheim-Baumberg. 2006 umfassend modernisiert; 2014 Austausch sämtlicher Fenster und Rollläden sowie Haustür, 2020 Erneuerung des Brenners. 5 Zimmer, 2 Bäder, Gäste-WC, Keller sowie Garage. Helle Räume mit großen Fensterflächen, Balkon (ca. 13 m²) und Terrasse mit Granitboden. Bezug nach Absprache möglich.

Ausstattung

  • freistehendes Einfamilienhaus
  • ca. 162 m² Wohnfläche
  • ca. 110 m² Nutzfläche
  • Grundstück ca. 464 m²
  • 5 Zimmer, 2 Bäder + Gäste-WC
  • Keller vorhanden
  • Ölheizung, Brenner 2020 erneuert
  • Fenster & Rollläden 2014 erneuert
  • Modernisierung 2006
  • Balkon ca. 13 m² & Terrasse mit Granit
  • Garage + 1 Stellplatz
  • Gehobene Ausstattung

Lage

Sehr attraktive, ruhige Wohnlage in Monheim-Baumberg. Einkauf, Ärzte, Kitas und Schulen bequem erreichbar; Rheinauen, Rad- und Spazierwege in der Nähe. Gute ÖPNV- und Autobahnanbindung Richtung Düsseldorf und Köln.

Sonstiges

Bitte nur ernsthafte Anfragen mit gesicherter Finanzierung. Besichtigungen nach Absprache, auch am Wochenende, möglich. Ein Maklervertrag kommt durch Inanspruchnahme zustande. Anbieter: Uwe Bier Immobilien.

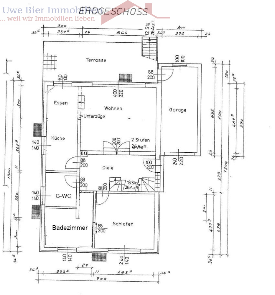
Grundriss

Grundriss

Kostenlose Immobilienbewertung in Monheim & Umgebung